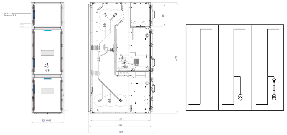
DW-2 BR - BUS RISER

| Jmenovitý proud | A | 630 - 1250 | 1600 - 2000 |
|---|---|---|---|
| Výška | mm | 2200 | 2200 |
| Výška s obloukovými odvětrávacími štíty | mm | 2500 | 2600 |
| Výška s potrubím pro odvod horkých plynů | mm | 2600 | 2600 |
| Šířka | mm | 650 / 800 | 800 |
| Hloubka | mm | 1260 | 1260 |
Pro popis všech polí typové řady DW-2 si stáhněte katalog v sekci Ke stažení.
