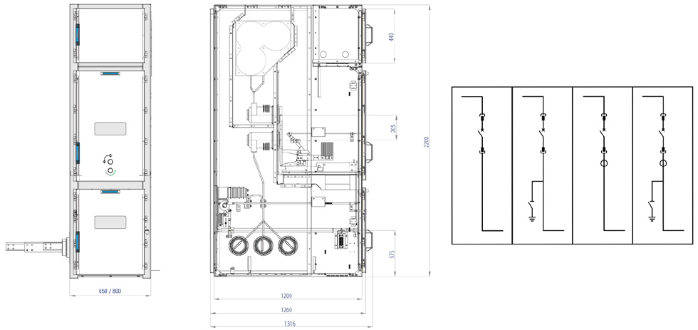
DW-2 BT - BUS TIE

| Jmenovitý proud | A | 630 - 2000 |
|---|---|---|
| Výška | mm | 2200 |
| Výška s obloukovými odvětrávacími štíty | mm | 2500 |
| Výška s potrubím pro odvod horkých plynů | mm | 2600 |
| Šířka | mm | 650 / 800 |
| Hloubka | mm | 1260 |
Pro popis všech polí typové řady DW-2 si stáhněte katalog v sekci Ke stažení.
